28 November 2025 - 11:00 AM

Lot 4

404-412 Shankill Road

Belfast, BT13 3AE

Commercial Investment Opportunity

Guide Price*
£315,000
Image 1 of 6
Image 2 of 6
Image 3 of 6
Image 4 of 6
Image 5 of 6
Image 6 of 6

Loading the bidding panel...

Security Deposit

£5,000

Buyer's Administration Fee

£1,200

Vendors Solicitor

Graham Ord, Tughans Solicitors, Marlborough House, 30 Victoria Street, Belfast, BT1 3GG
028 9055 3300

Additional Documents

Related Documents

Make an Enquiry

Submit an enquiry and someone will be in contact shortly.

 
*  
*  
*
*
*

Key features

  • Lease to Funeral Services Northern Ireland Ltd 
  • Sold subject to a new tenancy
  • Net Initial Yield of 8.13% based on guide price

Description

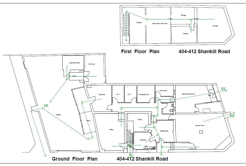
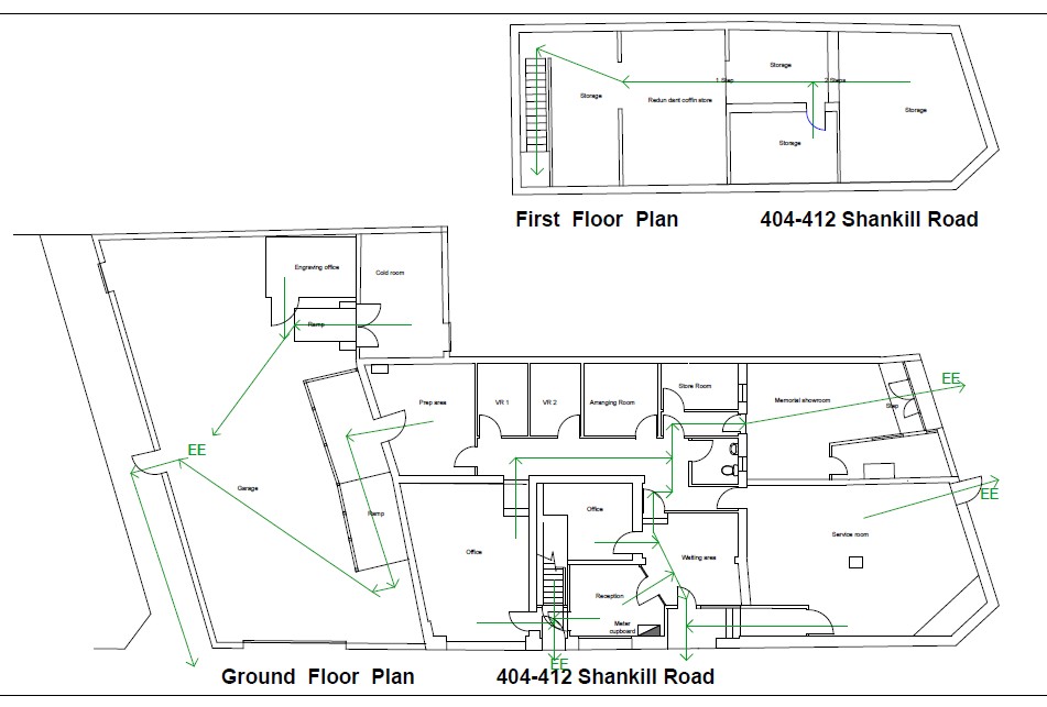
The two storey property which has a single storey extension comprises a funeral parlour, garage and a showroom. The buildings are of traditional construction covered primarily by pitched, mono and flat roofs. Internally the property is laid out to provide funeral home accommodation and ancillary areas

Viewing

Contact the Savills auction team.

Planning

Funeral Home

VAT

This property is not opted for VAT.

Title

Please download the Title Pack directly from the Savills Auction platform and any additional legal queries can be referred to the vendor’s solicitor.

Land and Property Services Rates Assessment

Net Annual Value: £26,000
Estimated Rates Payable: £16,291

Additional information

Tenancy

A new 20 year FRI lease to Funeral Services Northern Ireland Ltd at a rent of £26,500 per annum with a review every 5th year. The rent reviews are Retail Price Indexed Linked (collar and cap 1% and 4% respectively per annum). There will be a tenant only break option at the end of tenth year.



Belfast is the capital city of Northern Ireland with an estimated population of 352,390 in 2024. The property is located on the Shankill Road at its junction with Mayo Street. This is a busy arterial route into Belfast area and benefits from heavy vehicular and pedestrian footfall. The Shankill Road is located in West Belfast within close proximity to the city centre. The surrounding area is a mix of medium density housing with a variety of commercial occupiers and amenities.

An Energy Performance Certificate (EPC) will be available as part of the legal pack. EPC - 65C

If no EPC rating appears please refer to the legal pack.

•Guide prices given are indications within 10% upwards or downwards of where the reserve price may be set at the time of going to print. Please note they are not an indication of the anticipated sale price or a valuation.

•The reserve price is the minimum price at which the property can be sold.

•Both the guide price and reserve price may be subject to change up to and including the day of the auction.

•For unsold properties after an auction an Available price may be listed. This is the price that the seller(s) are looking for post auction, subject to contract and no higher offers, and has no relation to the guide prices listed prior to the auction sale.

Please note that all prices listed, whether prior to or post auction, are subject to contract.

The Auctioneers and sellers accept no responsibility for any loss, cost or damage that a buyer may incur as a result of relying on any guide price. It is the buyer's responsibility to decide how much they should bid for any lot. Please check with us for regular updates as guide prices are subject to change prior to the auction.

The guide price does not include the buyer's fee charged by the auctioneer or VAT which may apply to the sale or other amounts the seller may charge. The seller's Special Conditions of Sale will state whether there are other seller's charges and whether the seller has elected to charge VAT on the sale price.

Accommodation

1 2 3 4 5
Ground Floor 2,120 sq ft 197 sq m
First Floor 1,097 sq ft 101.9 sq m
Garage 1,579 sq ft 146.7 sq m
Total 4,796 sq ft 4,445.6 sq m