28 November 2025

28 properties for sale

28 November 2025 - 11:00 AM - Online bidding only.

Lot 1

Klondyke Building, The Gasworks, Cromac Avenue, Belfast, County Antrim, BT7 2JA

  • Landmark Office Building located within The Gasworks, Belfast
  • Fitted Office Building extending to 57,495 sq ft
  • No LPS rates liability whilst vacant
  • Benefits from 26 on site car parking spaces
Lot 2
Result
£400,000

97 -101 Ravenhill Road, Belfast, County Antrim, BT6 8DQ

  • Mixed Use Fully Let Investment Opportunity
  • Fully let producing £41,400 pa
  • Located on busy arterial route
  • Net Initial Yield of 10.47% based on guide price
Lot 3
Result
£266,000

2 The Diamond, Enniskillen, County Fermanagh, BT74 7EQ

  • Prominent Commercial Building (Part Income Producing)
  • Asset management opportunities
  • Estimated potential rental value £30,000 plus pa
  • Sold subject to a single tenancy
Lot 4

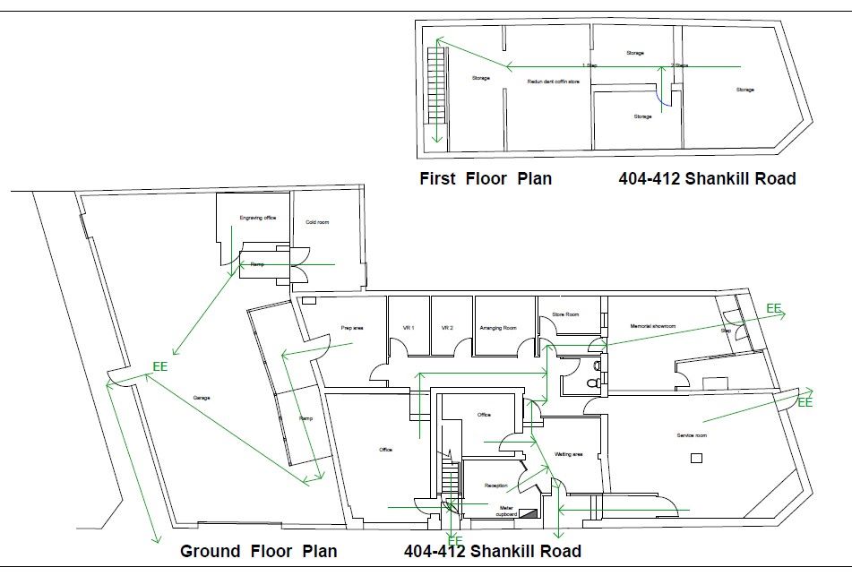
404-412 Shankill Road, Belfast, County Antrim, BT13 3AE

  • Commercial Investment Opportunity
  • Lease to Funeral Services Northern Ireland Ltd 
  • Sold subject to a new tenancy
  • Net Initial Yield of 8.13% based on guide price
Lot 7
Result
£165,000

4 Atlantic Avenue, Portrush, County Antrim, BT56 8BW

  • Residential refurbishment opportunity
  • Ideally located in the heart of Portrush
  • Adjacent to the Marcus Hotel
  • Sold with the benefit of vacant possession
Lot 10

2 Alfred Street, Bangor, County Down, BT20 5DH

  • Fully Let to Northern Ireland Housing Executive
  • £52,000 per annum rental income
  • Building extends to 5,199 sqft with car parking
  • Net Initial Yield of 15.21% based on guide price
Lot 12
Result
£552,000

Bow Lane & Antrim Street, Lisburn, County Antrim, BT28 1AU

  • Excellent City Centre Commercial Investment
  • Asset management opportunities
  • Total Gross Income £59,700
  • Net Initial Yield of 12.02% based on guide price
Lot 14

Rue Point Lands Rathlin Island, Ballycastle, County Antrim, BT54 6RT

  • 7.3 acres of land adjacent to Rue Point Lighthouse
  • Mix of rock and rough grazing lands
  • Adjacent to Rue Point Lighthouse
  • Benefits from panoramic view over the North Atlantic
Lot 15

Ushet Store Rathlin Island, Ballycastle, County Antrim, BT54 6RT

  • Unique Rathlin Island Dwelling Opportunity Subject to Required Consents.
  • An opportunity to preserve and repurpose a key element of Rathlin’s built heritage
  • Historic Ushet Store
  • Offers panoramic views over the North Atlantic and Islay Island
Lot 16
Result
£294,000

50 High Street, Portadown, Craigavon, County Armagh, BT62 1HY

  • Prominent former bank building
  • Prominent commericial unit with return frontage
  • Modern fitout on upper floors with lift access
  • Sold with the benefit of vacant possession
Lot 18
Result
£175,000

69-73 Main Street, Bangor, County Down, BT20 5AF

  • Prominent Town Centre Building
  • Prime town centre location
  • Building extends to 9,899 sq ft (936 sq m)
  • Subject for a variety of commercial uses
Lot 21

Lands at Ballagh Road, Clogher, County Tyrone, BT76 0JY

  • Quality agricultural lands extending to 54.12 acres
  • Excellent road frontage and access
  • Laid out over 5 fields of good size and shape
  • Stock proof fencing and hedgerow throughout
Lot 22

Lands at Kell Road, Clogher, County Tyrone, BT76 0HY

  • Lands extending to 54.50 acres
  • Internal farm track
  • Continuous block
  • Currently laid in pasture and rough grazing
Lot 23

Lands Adjacent to 71 Ballagh Road, Clogher, County Tyrone, BT75 0LD

  • Agricultural lands extending to c. 36.21 acres (14.65 hectares) in total
  • Road frontage with access points off Ballagh Road
  • Continuous block laid out over 3 fields
  • Stock proof fencing throughout
Lot 24

Lands Adjacent to 6 Kell Road, Clogher, County Tyrone, BT76 0JY

  • Quality agricultural lands extending to 34.78 acres (14.07 hectares) in total
  • Accessed off Kells Road
  • Laid out over 2 fields
  • Secured by stock proof fencing and hedgerows

* Generally speaking Guide Prices are provided as an indication of each seller's minimum expectation, i.e. 'The Reserve'. They are not necessarily figures which a property will sell for and may change at any time prior to the auction. Virtually every property will be offered subject to a Reserve (a figure below which the Auctioneer cannot sell the property during the auction) which we expect will be set within the Guide Range or no more than 10% above a single figure Guide.